TYPE
LOCATION
STATUS
CLIENT
SITE AREA
FLOOR AREA
PHOTOGRAPHY
TEAM
RECOGNITION
Residential Alteration & Addition
Bayswater, Western Australia
Completed 2023
Private / Owner-builder
450m²
90m² new addition — 90m2 renovation
Jack Lovel
Craig Nener
Landscaping: Michelle Kar (mkticks)
Dezeen 2024 Winner — Renovation of the Year
BLT 2024 House of the Year
— A quietly confident renovation of a 1900s cottage, Shadow House blends heritage, light, and landscape into a sustainable suburban retreat.
























Bayswater, WA
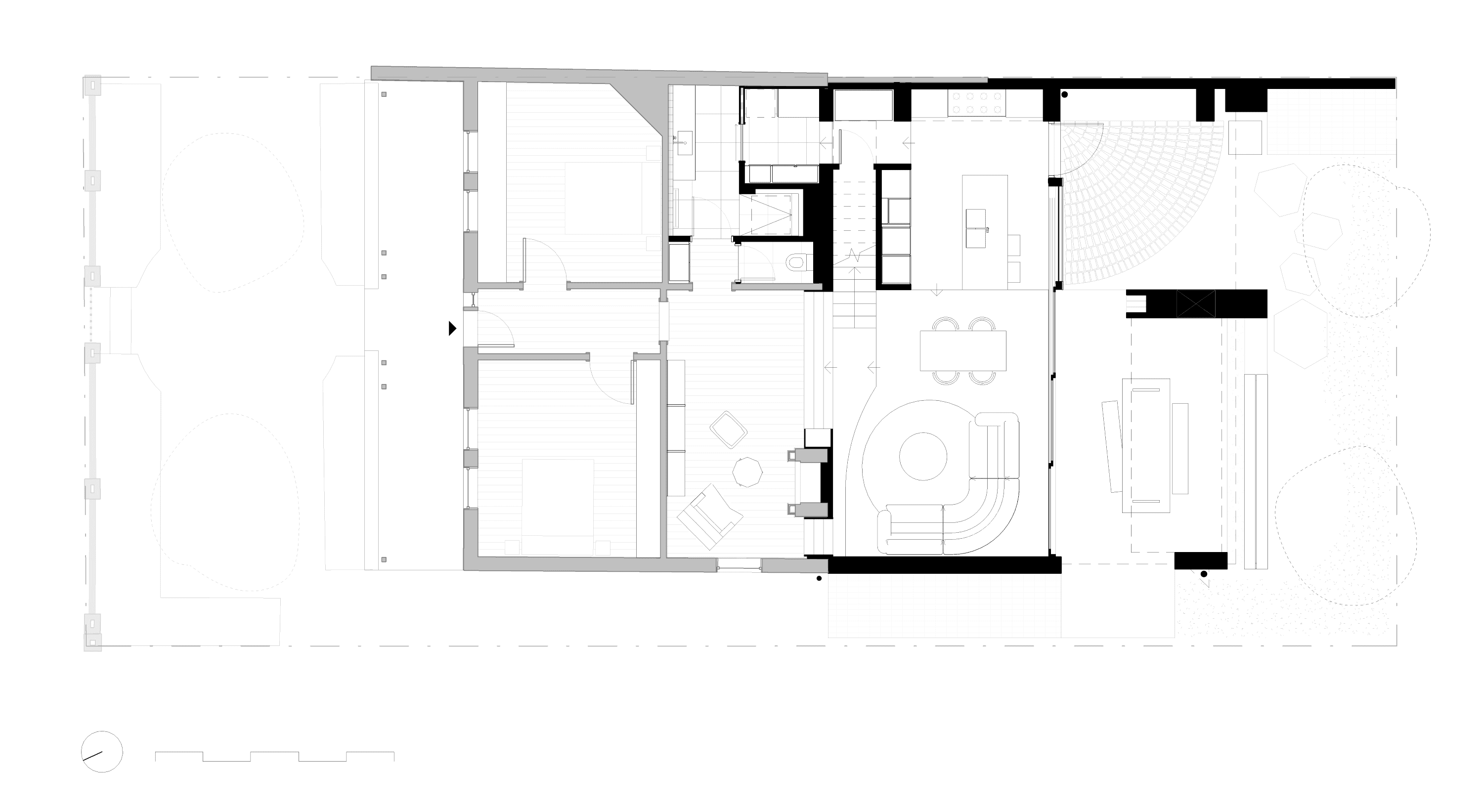
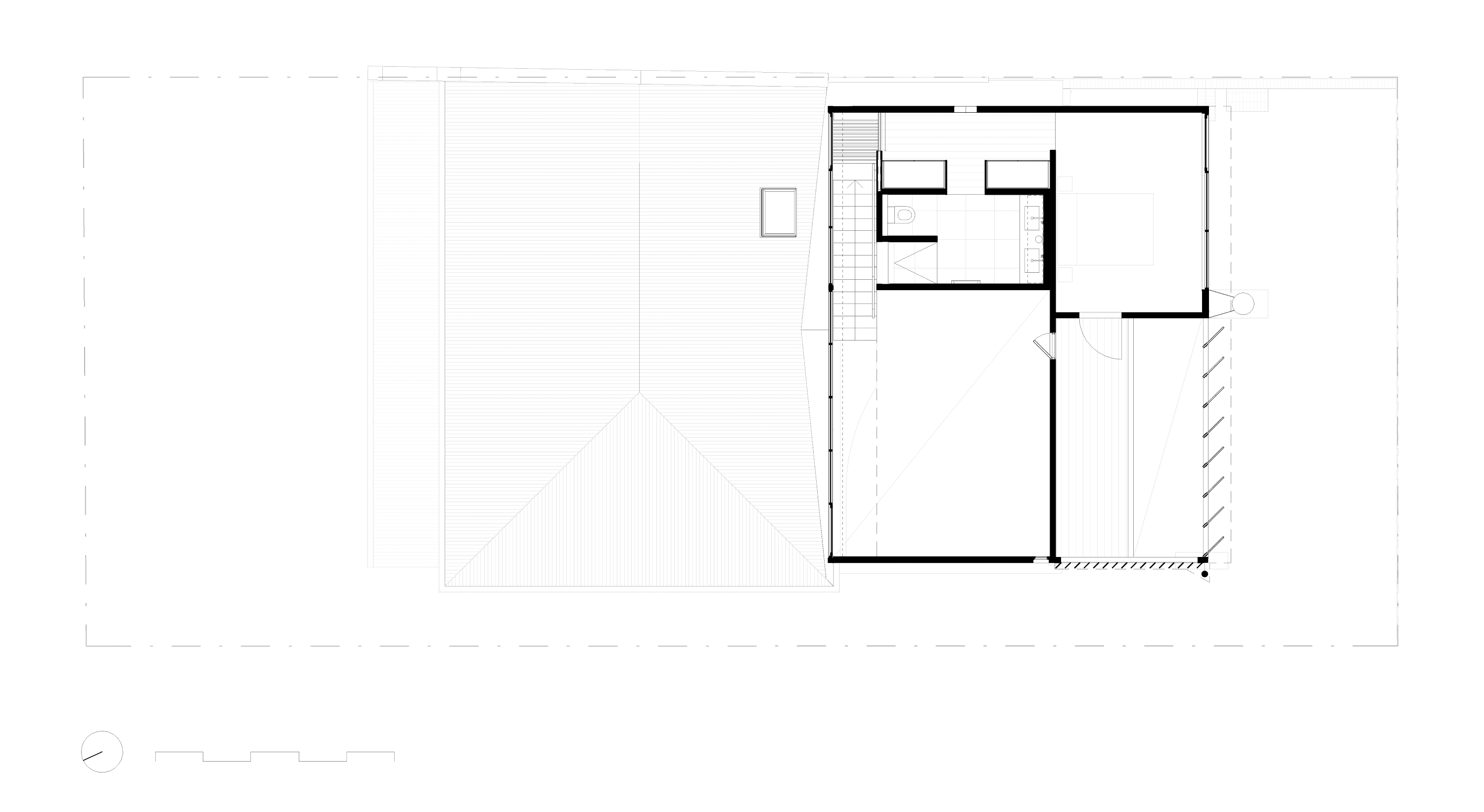
Shadow House is a thoughtful alteration and addition to a circa 1900 weatherboard cottage, blending heritage with contemporary sustainability. The original cottage was retained and restored, while a new extension—clad in charred recycled jarrah—was carefully designed to recede into the background, allowing the existing structure to remain prominent in the streetscape.
Oriented southwest to northeast, the new living spaces follow a raking roofline that captures early morning sunlight and frames the twin jacaranda trees that define the site. These trees become part of the architecture—viewed, framed, and animated by the changing light throughout the day. As the afternoon sun moves across the building, it energizes the living spaces with warmth and contrast, enhancing the texture of materials and the quality of light within.
A private guest studio occupies the southern corner of the site, clad in dark plywood and opening onto its own courtyard. Between this and the main home, an airy atrium and warm, raw jarrah-lined courtyard provide a moment of pause, connecting the inside with the outside and drawing the eye to sky and foliage.
The rear verandah is a deliberate nod to the Australian vernacular—a reference to regionalism and the lived experience of climate, shade, and informal outdoor life. This gesture anchors the home to place and memory, forming a key touchstone in GROTTO Studio’s design philosophy of contextual sensitivity and spatial grounding.
Through reclaimed materials, passive design, and finely tuned spatial relationships, Shadow House offers a model for compact, sustainable suburban living. It is a home shaped by light, landscape, and legacy—designed to live in, and to last.
























Shadow House is a thoughtful alteration and addition to a circa 1900 weatherboard cottage, blending heritage with contemporary sustainability. The original cottage was retained and restored, while a new extension—clad in charred recycled jarrah—was carefully designed to recede into the background, allowing the existing structure to remain prominent in the streetscape.
Oriented southwest to northeast, the new living spaces follow a raking roofline that captures early morning sunlight and frames the twin jacaranda trees that define the site. These trees become part of the architecture—viewed, framed, and animated by the changing light throughout the day. As the afternoon sun moves across the building, it energizes the living spaces with warmth and contrast, enhancing the texture of materials and the quality of light within.
A private guest studio occupies the southern corner of the site, clad in dark plywood and opening onto its own courtyard. Between this and the main home, an airy atrium and warm, raw jarrah-lined courtyard provide a moment of pause, connecting the inside with the outside and drawing the eye to sky and foliage.
The rear verandah is a deliberate nod to the Australian vernacular—a reference to regionalism and the lived experience of climate, shade, and informal outdoor life. This gesture anchors the home to place and memory, forming a key touchstone in GROTTO Studio’s design philosophy of contextual sensitivity and spatial grounding.
Through reclaimed materials, passive design, and finely tuned spatial relationships, Shadow House offers a model for compact, sustainable suburban living. It is a home shaped by light, landscape, and legacy—designed to live in, and to last.
TYPE
LOCATION
STATUS
CLIENT
SITE AREA
FLOOR AREA
PHOTOGRAPHY
TEAM
RECOGNITION
← SLIDE
Residential Alteration & Addition
Bayswater, Western Australia
Completed 2023
Private / Owner-builder
450m²
90m² addition—90m2 renovation
Jack Lovel
Craig Nener
Landscaping: Michelle Kar (mkticks)
Dezeen 2024 Winner — Renovation of the Year
BLT 2024 House of the Year
— A quietly confident renovation of a 1900s cottage, Shadow House blends heritage, light, and landscape into a sustainable suburban retreat.
TYPE
LOCATION
STATUS
CLIENT
SITE AREA
FLOOR AREA
TEAM
Residential Alteration & Addition
West Perth, Western Australia
Completed 2025
Private
327m²
79m² existing — 73m2 addition — Total 152m2
Craig Nener
James Russell
Siobhan Mcqueen
Spectre House is an experimental design that blends light, colour, and form to create immersive spaces that contrast old and new, shaping unique atmospheres for living, bathing, and studying.



















West Perth, WA
Spectre House is an experimental alteration and addition project that explores the powerful relationship between light and colour, shadow and brightness, to define and distinguish living spaces. The design contrasts the old with the new, introducing a striking double-height grand room that invites an abundance of natural light into the heart of the home.
Drawing inspiration from the captivating Broken Spectre phenomenon, a unique window sill feature casts an ever-changing spectrum of colour across the raked ceiling, as light streams in from behind the addition. This interplay of light creates a visual connection between the interior and the world beyond.
The ground-level facade, with its full-width southern glazing, seamlessly integrates the surrounding garden, bathing the interior in soft, natural light. A solid brick base grounds the lower floor, while a light and airy upper story creates an elegant contrast. The alfresco area is thoughtfully designed, offering privacy and sun-louvers that frame views of the city skyline from the upper balcony.
Each intimate space within Spectre House serves a distinct function—bathing, sleeping, and studying—and is enveloped in a singular, bold colour that creates a sanctuary-like atmosphere. The result is a diverse array of spaces, each with its own unique mood and character.
In essence, Spectre House is a celebration of how light and colour shape our experiences, creating environments that not only respond to function but elevate our sense of place and well-being.



















West Perth, WA
Spectre House is an experimental alteration and addition project that explores the powerful relationship between light and colour, shadow and brightness, to define and distinguish living spaces. The design contrasts the old with the new, introducing a striking double-height grand room that invites an abundance of natural light into the heart of the home.
Drawing inspiration from the captivating Broken Spectre phenomenon, a unique window sill feature casts an ever-changing spectrum of colour across the raked ceiling, as light streams in from behind the addition. This interplay of light creates a visual connection between the interior and the world beyond.
The ground-level facade, with its full-width southern glazing, seamlessly integrates the surrounding garden, bathing the interior in soft, natural light. A solid brick base grounds the lower floor, while a light and airy upper story creates an elegant contrast. The alfresco area is thoughtfully designed, offering privacy and sun-louvers that frame views of the city skyline from the upper balcony.
Each intimate space within Spectre House serves a distinct function—bathing, sleeping, and studying—and is enveloped in a singular, bold colour that creates a sanctuary-like atmosphere. The result is a diverse array of spaces, each with its own unique mood and character.
In essence, Spectre House is a celebration of how light and colour shape our experiences, creating environments that not only respond to function but elevate our sense of place and well-being.
TYPE
LOCATION
STATUS
CLIENT
SITE AREA
FLOOR AREA
TEAM
Residential Alteration & Addition
West Perth, Western Australia
Completed 2025
Private
327m²
79m² existing — 73m2 addition — Total 152m2
Craig Nener
James Russell
Siobhan Mcqueen
Spectre House is an experimental design that blends light, colour, and form to create immersive spaces that contrast old and new, shaping unique atmospheres for living, bathing, and studying.
TYPE
LOCATION
STATUS
CLIENT
SITE AREA
FLOOR AREA
PHOTOGRAPHY
TEAM
Office & Warehouse Re-fit
Canningvale, Western Australia
Completed 2023
Raubex Australia
3530m²
820m² existing
Michelle Kar (mkticks)
Total Fitouts Perth South
Remington Matters
A refined yet rugged commercial fitout, the Raubex Office reinterprets roadside infrastructure into sculptural architectural elements—anchoring a workplace built for industry and identity.



















Canningvale, WA
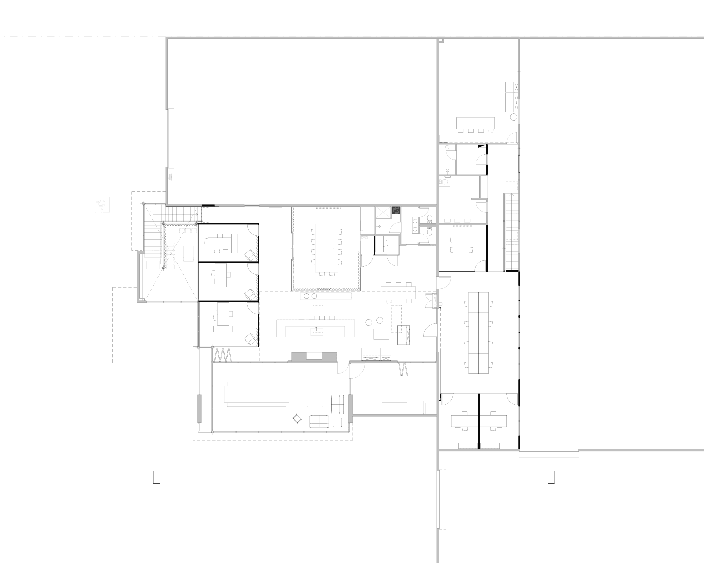
This office refurbishment for a national road construction company reimagines an ad-hoc, dysfunctional workplace into a refined and purposeful headquarters—robust in character and precise in execution.
The design reflects the company’s ethos through a language of material honesty and engineered detailing. Central to the concept is the reappropriation of W-beam highway guardrails, rotated vertically to form a sculptural curtain in the double-height reception atrium. These industrial components—so often associated with linear infrastructure—are used here to temper morning sunlight, reduce heat gain, and act as a bold architectural statement at entry.
The fitout reorganises the office’s spatial logic, improving flow between the warehouse and administration zones. The upper floor houses executive offices, open-plan workspaces, and shared breakout areas—including a lounge, kitchen, and boardroom—designed for both collaboration and quiet focus.
Custom steel furniture, shelving, and reception elements were fabricated in collaboration with Remington Matters, giving the interiors a distinct and unified identity. Reused carpet tiles were re-patterned in bold geometric arrangements to align with the brand palette, proving that even high-impact design can be achieved with economy and care.



















Canningvale, WA
This office refurbishment for a national road construction company reimagines an ad-hoc, dysfunctional workplace into a refined and purposeful headquarters—robust in character and precise in execution.
The design reflects the company’s ethos through a language of material honesty and engineered detailing. Central to the concept is the reappropriation of W-beam highway guardrails, rotated vertically to form a sculptural curtain in the double-height reception atrium. These industrial components—so often associated with linear infrastructure—are used here to temper morning sunlight, reduce heat gain, and act as a bold architectural statement at entry.
The fitout reorganises the office’s spatial logic, improving flow between the warehouse and administration zones. The upper floor houses executive offices, open-plan workspaces, and shared breakout areas—including a lounge, kitchen, and boardroom—designed for both collaboration and quiet focus.
Custom steel furniture, shelving, and reception elements were fabricated in collaboration with Remington Matters, giving the interiors a distinct and unified identity. Reused carpet tiles were re-patterned in bold geometric arrangements to align with the brand palette, proving that even high-impact design can be achieved with economy and care.
TYPE
LOCATION
STATUS
CLIENT
SITE AREA
FLOOR AREA
PHOTOGRAPHY
TEAM
Office & Warehouse Re-fit
Canningvale, Western Australia
Completed 2023
Raubex Australia
3530m²
820m² existing
Michelle Kar (mkticks)
Total Fitouts Perth South
Remington Matters
A refined yet rugged commercial fitout, the Raubex Office reinterprets roadside infrastructure into sculptural architectural elements—anchoring a workplace built for industry and identity.
TYPE
LOCATION
STATUS
CLIENT
SITE AREA
FLOOR AREA
PHOTOGRAPHY
TEAM
Residential Alteration & Addition
Wembley Downs, Western Australia
Completed 2023
Private
583m²
10m² existing — 39m2 addition — Total 49m2
Basim Balous
Craig Nener
James Russell
A dark timber-clad artist studio perched above a garage, Roux Studio opens to the treetops and southern light, forming a quiet, elevated space for making and reflection.












Wembley Downs, WA
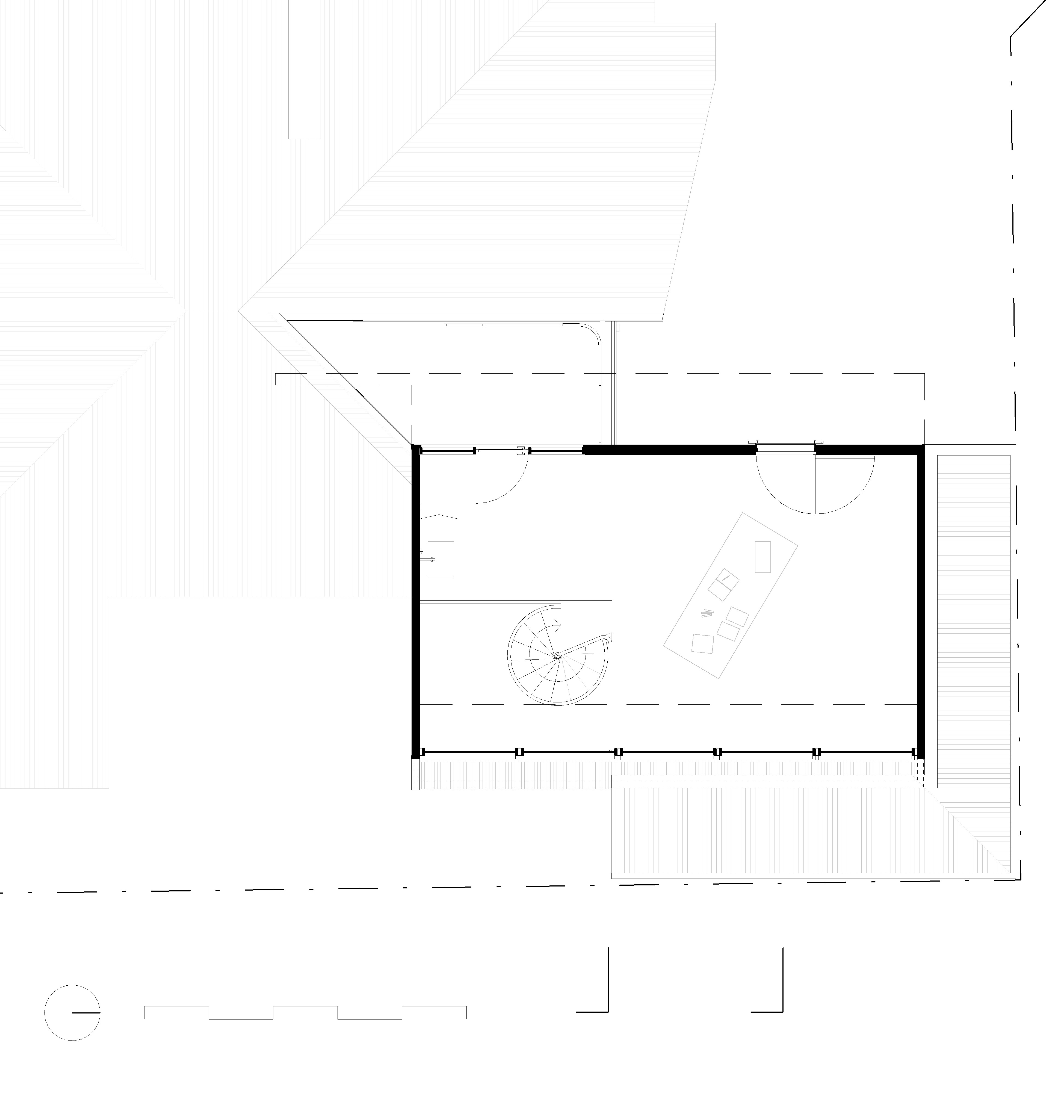
Roux Studio is a modest but richly considered artist’s retreat, delicately stitched into the landscape of tall gums in Wembley Downs. The addition sits atop an existing garage, extending from a darkened black timber house and rising quietly into the tree canopy.
Accessed through the old home office and courtyard, a black spiral stair winds upward to the new studio. The transition from shadow to light is deliberate—emerging into a lofty, sloped-roof workspace filled with diffuse southern light, ideal for making and reflecting. The southern façade is fully glazed, framing the trees beyond and pulling the landscape inward. A recessed balcony cuts into the roof geometry to create a perch under the treetops—a place to pause and breathe.
The exterior is clad in shou sugi ban, the client’s favoured material for its deep tone and shimmering surface. The blue door on the street-facing elevation is fitted with a pulley system, a playful but practical nod to the studio’s function, allowing artworks and materials to be lifted up with ease.
Built as an extension of both the house and the artist’s creative life, Roux Studio is intimate, elemental, and quietly powerful.












Wembley Downs, WA
Roux Studio is a modest but richly considered artist’s retreat, delicately stitched into the landscape of tall gums in Wembley Downs. The addition sits atop an existing garage, extending from a darkened black timber house and rising quietly into the tree canopy.
Accessed through the old home office and courtyard, a black spiral stair winds upward to the new studio. The transition from shadow to light is deliberate—emerging into a lofty, sloped-roof workspace filled with diffuse southern light, ideal for making and reflecting. The southern façade is fully glazed, framing the trees beyond and pulling the landscape inward. A recessed balcony cuts into the roof geometry to create a perch under the treetops—a place to pause and breathe.
The exterior is clad in shou sugi ban, the client’s favoured material for its deep tone and shimmering surface. The blue door on the street-facing elevation is fitted with a pulley system, a playful but practical nod to the studio’s function, allowing artworks and materials to be lifted up with ease.
Built as an extension of both the house and the artist’s creative life, Roux Studio is intimate, elemental, and quietly powerful.
TYPE
LOCATION
STATUS
CLIENT
SITE AREA
FLOOR AREA
PHOTOGRAPHY
TEAM
Residential Alteration & Addition
Wembley Downs, Western Australia
Completed 2023
Private
583m²
10m² existing — 39m2 addition — Total 49m2
Basim Balous
Craig Nener
James Russell
A dark timber-clad artist studio perched above a garage, Roux Studio opens to the treetops and southern light, forming a quiet, elevated space for making and reflection.
TYPE
LOCATION
STATUS
CLIENT
SITE AREA
FLOOR AREA
TEAM
Residential Alteration & Addition
Beaconsfield, Western Australia
Under Construction
Private
750m²
93m² existing — 130m2 addition — Total 223m2
Craig Nener
Ingo Wurm
A timber-framed series of pavilions extends from an original cottage in Beaconsfield, opening the home to courtyards, borrowed landscapes, and layered daily rituals.


















Beaconsfield, WA
Martha is a layered addition to a limestone cottage in Beaconsfield—an interplay of new timber pavilions that gently break from the geometry of the existing home, responding instead to sunlight, slope, and landscape.
The project follows a simple idea: to allow the architecture to nestle into the terrain and unfold in sections. A new timber-framed pavilion sits on limestone footings like a contemporary grain store (horreo in Spanish), housing the kitchen, living, dining, scullery, ensuite, and laundry. This structure is oriented toward the north, framing views of tall gums and dense native planting, while opening out to a large, covered deck shaded by a deep eave.
Two courtyards are formed by the staggered plan—one public and west-facing, the other private and nestled to the northeast, offering quiet refuge to the new master suite. A timber bridge mediates the transition between old and new.
To the rear, a smaller pavilion operates as a home studio, complete with sauna and outdoor shower. Designed for both work and retreat, this structure opens to the landscape with a wide framed window and sliding shade screen—its elevation offering long views and slow sunsets.














TYPE
LOCATION
STATUS
CLIENT
SITE AREA
FLOOR AREA
TEAM
Residential Alteration & Addition
Beaconsfield, Western Australia
Under Construction
Private
750m²
93m² existing — 130m2 addition — Total 223m2
Craig Nener
Ingo Wurm
A timber-framed series of pavilions extends from an original cottage in Beaconsfield, opening the home to courtyards, borrowed landscapes, and layered daily rituals.
Beaconsfield, WA
Martha is a layered addition to a limestone cottage in Beaconsfield—an interplay of new timber pavilions that gently break from the geometry of the existing home, responding instead to sunlight, slope, and landscape.
The project follows a simple idea: to allow the architecture to nestle into the terrain and unfold in sections. A new timber-framed pavilion sits on limestone footings like a contemporary grain store (horreo in Spanish), housing the kitchen, living, dining, scullery, ensuite, and laundry. This structure is oriented toward the north, framing views of tall gums and dense native planting, while opening out to a large, covered deck shaded by a deep eave.
Two courtyards are formed by the staggered plan—one public and west-facing, the other private and nestled to the northeast, offering quiet refuge to the new master suite. A timber bridge mediates the transition between old and new.
To the rear, a smaller pavilion operates as a home studio, complete with sauna and outdoor shower. Designed for both work and retreat, this structure opens to the landscape with a wide framed window and sliding shade screen—its elevation offering long views and slow sunsets.
TYPE
LOCATION
STATUS
CLIENT
SITE AREA
FLOOR AREA
TEAM
Residential Alteration & Addition
Mt Hawthorn, Western Australia
Under Construction
Private
502m²
158m² existing — 42m2 addition
Craig Nener
Basim Balous
Michelle Kar
Jordan Pol
A dappled outdoor room beneath a peppermint tree, Sunroom is a filtered space of light and shadow—bridging home and garden with precision and calm.











Mt Hawthorn, WA
Sunroom is a carefully calibrated renovation and outdoor living addition to a 1930s cottage in Mount Hawthorn—designed as a space to dwell within light, rather than shield from it.
Embedded into the sloping garden and nestled beneath a mature weeping peppermint tree and olive, the new structure acts as a shaded threshold between house and landscape. A reinterpretation and extension of the 1980s lean-to, the new sunroom sits as a steel portal frame, anchored into a red pigmented concrete slab that forms both floor and furniture—wrapping into a generous bench for sitting, resting, and retreating.
Frameless glazing provides year-round enclosure while maintaining an open connection to the garden. Above, a suspended ceiling of translucent fibre-reinforced plastic grating filters sunlight into a soft, dappled interior—turning harsh Perth heat into gentle shade.
Internally, the project reconfigures bathrooms and adds a new bedroom to the existing cottage. Each bathroom receives its own light aperture—skylit voids that funnel natural light into intimate, atmospheric spaces.
Born from the idea of a sunroom, the project is both innovative and poetic—responding to the climate with restraint, lightness, and invention.











TYPE
LOCATION
STATUS
CLIENT
SITE AREA
FLOOR AREA
TEAM
Residential Alteration & Addition
Mt Hawthorn, Western Australia
Under Construction
Private
502m²
158m² existing — 42m2 addition
Craig Nener
Basim Balous
Michelle Kar
Jordan Pol
A dappled outdoor room beneath a peppermint tree, Sunroom is a filtered space of light and shadow—bridging home and garden with precision and calm.
Mt Hawthorn, WA
Sunroom is a carefully calibrated renovation and outdoor living addition to a 1930s cottage in Mount Hawthorn—designed as a space to dwell within light, rather than shield from it.
Embedded into the sloping garden and nestled beneath a mature weeping peppermint tree and olive, the new structure acts as a shaded threshold between house and landscape. A reinterpretation and extension of the 1980s lean-to, the new sunroom sits as a steel portal frame, anchored into a red pigmented concrete slab that forms both floor and furniture—wrapping into a generous bench for sitting, resting, and retreating.
Frameless glazing provides year-round enclosure while maintaining an open connection to the garden. Above, a suspended ceiling of translucent fibre-reinforced plastic grating filters sunlight into a soft, dappled interior—turning harsh Perth heat into gentle shade.
Internally, the project reconfigures bathrooms and adds a new bedroom to the existing cottage. Each bathroom receives its own light aperture—skylit voids that funnel natural light into intimate, atmospheric spaces.
Born from the idea of a sunroom, the project is both innovative and poetic—responding to the climate with restraint, lightness, and invention.
TYPE
LOCATION
STATUS
CLIENT
SITE AREA
FLOOR AREA
TEAM
Residential Alteration & Addition
Bayswater, Western Australia
Design Development
Private / Owner-builder
699m²
58m² existing — 70m2 addition — Total 128m2
Craig Nener
Basim Balous
Michelle Kar
Jordan Pol
A timber-framed living space inspired by the double bass, Luthier House is a home for light, music, and making—punctuated by stained glass and a soaring roof.











Bayswater, WA
Luthier House is a 40m² open-plan addition to a timber-framed cottage, designed with clarity and reverence for both craft and climate. Replacing an ad-hoc annex built in the decades prior, the new structure offers a logical, refined resolution—anchored by a soaring timber roof inspired by the client’s vocation as a luthier.
The 52-degree pitch references both the workshop shed the owner built by hand and the form of the double bass—his chosen instrument to build. Its inverted bowstring ridge beam mimics the tension of the bridge and strings, giving the roof structure a resonant architectural expression. At each gable end, stained glass windows infuse the space with soft coloured light—bookending the volume with warmth and rhythm.
A 10-metre-long translucent roof strip between the old and new structures draws daylight deep into the floor plan—illuminating the reconfigured bathroom, sitting room, study, and scullery with a gentle, diffuse glow.
The internal layout consolidates utility spaces along the service spine, while the new pergola invites climbing natives to shade the southwest façade. A curved brick terrace steps down from the garden, reimagined as an amphitheatre for informal performances—where the client plays to friends and family from home.
At once simple and personal, Luthier House harmonises everyday domestic rituals with the quiet beauty of making and music.











Luthier House is a 40m² open-plan addition to a timber-framed cottage, designed with clarity and reverence for both craft and climate. Replacing an ad-hoc annex built in the decades prior, the new structure offers a logical, refined resolution—anchored by a soaring timber roof inspired by the client’s vocation as a luthier.
The 52-degree pitch references both the workshop shed the owner built by hand and the form of the double bass—his chosen instrument to build. Its inverted bowstring ridge beam mimics the tension of the bridge and strings, giving the roof structure a resonant architectural expression. At each gable end, stained glass windows infuse the space with soft coloured light—bookending the volume with warmth and rhythm.
A 10-metre-long translucent roof strip between the old and new structures draws daylight deep into the floor plan—illuminating the reconfigured bathroom, sitting room, study, and scullery with a gentle, diffuse glow.
The internal layout consolidates utility spaces along the service spine, while the new pergola invites climbing natives to shade the southwest façade. A curved brick terrace steps down from the garden, reimagined as an amphitheatre for informal performances—where the client plays to friends and family from home.
At once simple and personal, Luthier House harmonises everyday domestic rituals with the quiet beauty of making and music.
TYPE
LOCATION
STATUS
CLIENT
SITE AREA
FLOOR AREA
COLLABORATORS
Residential Alteration & Addition
Bayswater, Western Australia
Design Development
Private / Owner-builder
699m²
58m² existing — 70m2 addition
Basim Balous
Michelle Kar
Jordan Pol
A timber-framed living space inspired by the double bass, Luthier House is a home for light, music, and making—punctuated by stained glass and a soaring roof.
TYPE
LOCATION
STATUS
CLIENT
SITE AREA
FLOOR AREA
TEAM
New Residential Home
Cottesloe, Western Australia
Development Application
Private
492m²
315m² GFA
Craig Nener
Stuart Confait
— An upside-down family home in Cottesloe, shaped by the trees of Pearse Street and anchored by a cascading courtyard pool.














Cottesloe, WA
Located on a gentle sloping site in Cottesloe, this two-storey home inverts the conventional plan—placing living spaces upstairs to capture views of the mature Norfolk Pines lining Pearse Street to the north.
At its centre, a landscaped courtyard features a tiered, stepped pool that cascades into a sunken indoor–outdoor rumpus room below. This courtyard anchors the plan, drawing light, air, and landscape deep into the home. The upper level hosts kitchen, dining, and living spaces beneath a pitched roof, with clerestory glazing set 1.6 metres above floor level to frame the trees while maintaining privacy & prevent overlooking.
Materials are robust yet refined—white brick, dark metal, and textured concrete—chosen for their resilience to coastal conditions and quiet contrast. Architecture and landscape are interwoven, with native planting softening the edge between building and street.
Designed for family life and outdoor connection, this is a home defined by light, structure, and long, landscape views.














TYPE
LOCATION
STATUS
CLIENT
SITE AREA
FLOOR AREA
TEAM
New Residential Home
Cottesloe, Western Australia
Development Application
Private
492m²
315m² GFA
Craig Nener
Stuart Confait
— An upside-down family home in Cottesloe, shaped by the trees of Pearse Street and anchored by a cascading courtyard pool.
Cottesloe, WA
Located on a gentle sloping site in Cottesloe, this two-storey home inverts the conventional plan—placing living spaces upstairs to capture views of the mature Norfolk Pines lining Pearse Street to the north.
At its centre, a landscaped courtyard features a tiered, stepped pool that cascades into a sunken indoor–outdoor rumpus room below. This courtyard anchors the plan, drawing light, air, and landscape deep into the home. The upper level hosts kitchen, dining, and living spaces beneath a pitched roof, with clerestory glazing set 1.6 metres above floor level to frame the trees while maintaining privacy & prevent overlooking.
Materials are robust yet refined—white brick, dark metal, and textured concrete—chosen for their resilience to coastal conditions and quiet contrast. Architecture and landscape are interwoven, with native planting softening the edge between building and street.
Designed for family life and outdoor connection, this is a home defined by light, structure, and long, landscape views.
JINDEE
TYPE
LOCATION
STATUS
CLIENT
SITE AREA
FLOOR AREA
TEAM
New Residential Home
Jindee, Western Australia
Building Permit
Private
401m²
164m² GFA
Craig Nener
Basim Balous
Jordan Pol
A coastal homestead shaped by symmetry, shade, and the quiet discipline of classical form.












Jindee, WA
This coastal residence in a forward-thinking subdivision north of Perth draws from the classical principles of order, rhythm, and symmetry—reinterpreted through the lens of Australian vernacular.
The plan is anchored by a central enfilade of bedrooms and bathrooms, offering both functional clarity and formal elegance. An open-air breezeway runs parallel, providing shaded circulation while enhancing passive cooling and spatial openness.
A concealed loft is nestled within the steeply pitched roof, extending the home’s functionality while preserving its external simplicity. The corner site is embraced by a wide, wraparound verandah—referencing historic coastal homesteads and offering a soft interface with the street.
Materially, the house balances refinement and durability: stone terraces, hardwood timberwork, lime render, and corrugated roofing designed to weather with grace. This is a house that blends traditional typologies with contemporary performance—resolute in its grounding yet generous in its openness to air, light, and family life.












JINDEE RESIDENCE
Jindee, WA
This coastal residence in a forward-thinking subdivision north of Perth draws from the classical principles of order, rhythm, and symmetry—reinterpreted through the lens of Australian vernacular.
The plan is anchored by a central enfilade of bedrooms and bathrooms, offering both functional clarity and formal elegance. An open-air breezeway runs parallel, providing shaded circulation while enhancing passive cooling and spatial openness.
A concealed loft is nestled within the steeply pitched roof, extending the home’s functionality while preserving its external simplicity. The corner site is embraced by a wide, wraparound verandah—referencing historic coastal homesteads and offering a soft interface with the street.
Materially, the house balances refinement and durability: stone terraces, hardwood timberwork, lime render, and corrugated roofing designed to weather with grace. This is a house that blends traditional typologies with contemporary performance—resolute in its grounding yet generous in its openness to air, light, and family life.
TYPE
LOCATION
STATUS
CLIENT
SITE AREA
FLOOR AREA
TEAM
New Residential Home
Jindee, Western Australia
Building Permit
Private
401m²
164m² GFA
Craig Nener
Basim Balous
Jordan Pol
A coastal homestead shaped by symmetry, shade, and the quiet discipline of classical form.
TYPE
LOCATION
STATUS
CLIENT
SITE AREA
FLOOR AREA
TEAM
Residential Alteration & Addition
Perth, Western Australia
Development Approval Granted
Private
250m²
84m² existing — 48m2 addition — Total 132m2
Craig Nener
Ardelan Bateman
Adele Hopewell
A bold red timber wedge transforms a modest backyard into a glowing, open-plan living space designed for cooking, entertaining, and basking in warm afternoon light.









Wedge is a small but striking addition to a Perth cottage—an angular red volume that expands and energises a tight backyard with spatial generosity and warm light.
Responding to the constraints of the site, the design leans into the drama of its form and materiality. The new addition is clad in jarrah and shaped to receive the western sun, drawing golden warmth into the living spaces as it reflects off the neighbouring red-brick boundary wall. At its apex, a sharp triangular corner is sliced open—here, two large stacker doors meet, forming a converging threshold where 3/4 of the space sits indoors, 1/4 outdoors, yet the lines between them are blurred. It becomes a space that feels neither wholly inside nor out, but somewhere in between—a generous, glowing volume to dwell, cook, and entertain.
At its heart sits the kitchen—crafted for a chef client as the social and functional anchor of the home. Light and shadow animate the timber-lined space throughout the day, softening its sharpness with warmth and depth.
The original cottage accommodates the bedrooms, along with a reworked bathroom, laundry, and scullery. Together, the home offers a layered mix of function and flair—tailored for living well.









Wedge is a small but striking addition to a Perth cottage—an angular red volume that expands and energises a tight backyard with spatial generosity and warm light.
Responding to the constraints of the site, the design leans into the drama of its form and materiality. The new addition is clad in jarrah and shaped to receive the western sun, drawing golden warmth into the living spaces as it reflects off the neighbouring red-brick boundary wall. At its apex, a sharp triangular corner is sliced open—here, two large stacker doors meet, forming a converging threshold where 3/4 of the space sits indoors, 1/4 outdoors, yet the lines between them are blurred. It becomes a space that feels neither wholly inside nor out, but somewhere in between—a generous, glowing volume to dwell, cook, and entertain.
At its heart sits the kitchen—crafted for a chef client as the social and functional anchor of the home. Light and shadow animate the timber-lined space throughout the day, softening its sharpness with warmth and depth.
The original cottage accommodates the bedrooms, along with a reworked bathroom, laundry, and scullery. Together, the home offers a layered mix of function and flair—tailored for living well.
TYPE
LOCATION
STATUS
CLIENT
SITE AREA
FLOOR AREA
COLLABORATORS
Residential Alteration & Addition
Perth, Western Australia
Development Approval Granted
Private
250m²
84m² existing — 48m2 addition — Total 132m2
Ardelan Bateman
A bold red timber wedge transforms a modest backyard into a glowing, open-plan living space designed for cooking, entertaining, and basking in warm afternoon light.
TYPE
LOCATION
STATUS
CLIENT
SITE AREA
FLOOR AREA
TEAM
New Residential Home
North Perth, Western Australia
Development Approval Granted
Private
334m²
167m² new build
Craig Nener
James Russell
Tucked between two laneways, Magnolia is a courtyard home for a growing family—private, passively designed, and planned for generational living.












Magnolia is a family home on a tight battle-axe block in North Perth, nestled at the junction of two laneways. Designed for a young couple planning their future, the house forms a private interior world—supporting daily life, deep rest, and small moments of joy.
The home is structured around a central courtyard that brings light, air, and greenery into the core. A full-circuit circulation strategy gives the plan a sense of generosity and fluidity, despite the site’s compact nature. Zones are clearly defined: a kids’ wing, a secluded parents’ retreat, and a guest suite designed for long stays by the grandparents. Several transitional spaces double in function—bathrooms as corridors, walk-through wardrobes, and a study that forms the connective tissue to the master wing—reinforcing the home’s layered and multifunctional logic.
Passive solar principles guide the layout. Deep eaves offer shade in summer, while high windows and cross ventilation invite natural cooling. Rainwater is harvested and reused, with overflow directed into the gardens to nourish the landscape.
Wrapped in lime-rendered masonry and topped with a simple pitched roof, Magnolia presents as a quiet, grounded object—a soft fortress shaped for family, resilience, and light.












Magnolia is a family home on a tight battle-axe block in North Perth, nestled at the junction of two laneways. Designed for a young couple planning their future, the house forms a private interior world—supporting daily life, deep rest, and small moments of joy.
The home is structured around a central courtyard that brings light, air, and greenery into the core. A full-circuit circulation strategy gives the plan a sense of generosity and fluidity, despite the site’s compact nature. Zones are clearly defined: a kids’ wing, a secluded parents’ retreat, and a guest suite designed for long stays by the grandparents. Several transitional spaces double in function—bathrooms as corridors, walk-through wardrobes, and a study that forms the connective tissue to the master wing—reinforcing the home’s layered and multifunctional logic.
Passive solar principles guide the layout. Deep eaves offer shade in summer, while high windows and cross ventilation invite natural cooling. Rainwater is harvested and reused, with overflow directed into the gardens to nourish the landscape.
Wrapped in lime-rendered masonry and topped with a simple pitched roof, Magnolia presents as a quiet, grounded object—a soft fortress shaped for family, resilience, and light.
TYPE
LOCATION
STATUS
CLIENT
SITE AREA
FLOOR AREA
COLLABORATORS
New Residential
North Perth, Western Australia
Development Approval Granted
Private
334m²
167m² new build
James Russell
Tucked between two laneways, Magnolia is a courtyard home for a growing family—private, passively designed, and planned for generational living.
TYPE
LOCATION
STATUS
CLIENT
SITE AREA
FLOOR AREA
TEAM
Residential Addition
Rossmoyne, Western Australia
Unbuilt
Private
809m²
62m2 addition
Craig Nener
Ardalan Bateman
A pavilion on the front lawn contains a master suite addition designed for ageing in place.










Rossmoyne, WA
Creekview Courtyard is a new master suite wing addition designed as a private, long-term retreat—allowing the client to age in place while their adult children visit and occupy the main house.
Separated from the existing residence, the new wing is connected via a bridge-like sitting room that overlooks a birch-lined garden, softened by prairie-style planting. This vegetated buffer creates visual and acoustic separation between the generations while maintaining connection.
The addition contains a self-contained master suite with its own kitchenette, sitting area, study, ensuite, WIR, and bedroom. All rooms are connected by a linear enfilade corridor, anchored by a continuous bay window with a deep bench seat—offering rest points throughout and drawing natural light into the home’s core.
Subtle age-in-place features are embedded throughout: a continuous grab rail from the bathroom to the robe, generous doorways, and flexible living zones that prioritise ease of use and comfort.
At the courtyard’s apex, two stacker doors meet at an acute corner—fully retracting to dissolve the threshold between inside and out, and expanding the compact footprint into the landscape.
Creekview Courtyard is a quietly ambitious project—part architecture, part garden, wholly considered for the years ahead.










Creekview Courtyard is a new master suite wing addition designed as a private, long-term retreat—allowing the client to age in place while their adult children visit and occupy the main house.
Separated from the existing residence, the new wing is connected via a bridge-like sitting room that overlooks a birch-lined garden, softened by prairie-style planting. This vegetated buffer creates visual and acoustic separation between the generations while maintaining connection.
The addition contains a self-contained master suite with its own kitchenette, sitting area, study, ensuite, WIR, and bedroom. All rooms are connected by a linear enfilade corridor, anchored by a continuous bay window with a deep bench seat—offering rest points throughout and drawing natural light into the home’s core.
Subtle age-in-place features are embedded throughout: a continuous grab rail from the bathroom to the robe, generous doorways, and flexible living zones that prioritise ease of use and comfort.
At the courtyard’s apex, two stacker doors meet at an acute corner—fully retracting to dissolve the threshold between inside and out, and expanding the compact footprint into the landscape.
Creekview Courtyard is a quietly ambitious project—part architecture, part garden, wholly considered for the years ahead.
TYPE
LOCATION
STATUS
CLIENT
SITE AREA
FLOOR AREA
COLLABORATORS
Residential Addition
Rossmoyne, Western Australia
Unbuilt
Private
809m²
62m2 addition
Ardalan Bateman
A pavilion on the front lawn contains a master suite addition designed for ageing in place.
TYPE
LOCATION
STATUS
CLIENT
SITE AREA
FLOOR AREA
TEAM
Residential Alteration & Addition
North Perth, Western Australia
Development Approval Granted
Private
460m²
88m² alt — 126m² add — Total 214m²
Craig Nener
James Russell
Toorak is a considered reworking of a heritage cottage, where a series of atmospheric rooms and courtyards are carved around the retained original structure to bring light, coherence, and intimacy back into the home.




















North Perth, WA
Nestled behind a richly detailed heritage façade, Toorak is a quiet reworking of a suburban villa—one that honours its age while gently stepping into the present.
Over the decades, a series of ad-hoc additions had obscured the home’s spatial clarity and fractured its relationship with the landscape. Our role was to bring coherence and light back into the home. The original walls and stained-glass windows were retained as a kind of internal ruin—preserved, framed, and reanimated by a new structure that wraps around them like a second skin.
Rather than an open-plan overhaul, the extension is a choreography of distinct rooms, each tuned to a different atmosphere—some dark and grounded, others open and bright. A sunken golden bathing space, timber-lined reading room, and reimagined bay window offer quiet moments of retreat and comfort. Thick walls, level changes, and deep reveals lend the plan a sense of mass and sculptural depth, as if carved rather than constructed.
Two new courtyards punctuate the plan. The primary courtyard buffers the main living spaces from the new garage and pool, drawing light and greenery into the home. A secondary courtyard, located where the old bathroom once stood, introduces natural light and ventilation into the new rumpus room, library, and dining space—enhancing their sense of depth and intimacy.
Above, the master suite is tucked fully within the roof form. A singular triangular peak pierces the heritage silhouette, subtly marking the home’s transformation.




















North Perth, WA
Nestled behind a richly detailed heritage façade, Toorak is a quiet reworking of a suburban villa—one that honours its age while gently stepping into the present.
Over the decades, a series of ad-hoc additions had obscured the home’s spatial clarity and fractured its relationship with the landscape. Our role was to bring coherence and light back into the home. The original walls and stained-glass windows were retained as a kind of internal ruin—preserved, framed, and reanimated by a new structure that wraps around them like a second skin.
Rather than an open-plan overhaul, the extension is a choreography of distinct rooms, each tuned to a different atmosphere—some dark and grounded, others open and bright. A sunken golden bathing space, timber-lined reading room, and reimagined bay window offer quiet moments of retreat and comfort. Thick walls, level changes, and deep reveals lend the plan a sense of mass and sculptural depth, as if carved rather than constructed.
Two new courtyards punctuate the plan. The primary courtyard buffers the main living spaces from the new garage and pool, drawing light and greenery into the home. A secondary courtyard, located where the old bathroom once stood, introduces natural light and ventilation into the new rumpus room, library, and dining space—enhancing their sense of depth and intimacy.
Above, the master suite is tucked fully within the roof form. A singular triangular peak pierces the heritage silhouette, subtly marking the home’s transformation.
TYPE
LOCATION
STATUS
CLIENT
SITE AREA
FLOOR AREA
TEAM
Residential Alteration & Addition
North Perth, Western Australia
Development Approval Granted
Private
460m²
126m² addtion — Total 214m²
Craig Nener
James Russell
Toorak is a considered reworking of a heritage cottage, where a series of atmospheric rooms and courtyards are carved around the retained original structure to bring light, coherence, and intimacy back into the home.
TYPE
LOCATION
STATUS
CLIENT
SITE AREA
FLOOR AREA
TEAM
Residential Alteration & Addition
Burswood, Western Australia
Construction Late 2025
Private
330m²
68m² addition — 90m² alteration
Craig Nener
A quiet, deliberate home in Burswood—part preservation, part portrait—framing light, landscape, and the life of its owner.







Burswood, WA
This renovation for creative director Sheridan Tjhung transforms a 1920s timber cottage in Burswood into a calm and deliberate home, grounded in memory and potential. Purchased with an unfinished rear addition, the home was reimagined from a single concept sketch that convinced Sheridan to buy it.
The design retains the integrity of the original cottage while inserting a bold yet restrained new volume at the rear. A steep roof lifts to the south, drawing in soft light and framing views of the established Cape Lilac tree that anchors the backyard.
The architecture is quiet but confident—carefully balanced between old and new, robust and delicate. Interior spaces are reoriented to support work, rest, and everyday rituals, with a material palette tuned to the warm tones of Burswood’s sandy soils.
More than a renovation, this project is a portrait—of place, personality, and the quiet ambition of making a house one’s own.






MULLET HOUSE
Burswood, WA
This renovation for creative director Sheridan Tjhung transforms a 1920s timber cottage in Burswood into a calm and deliberate home, grounded in memory and potential. Purchased with an unfinished rear addition, the home was reimagined from a single concept sketch that convinced Sheridan to buy it.
The design retains the integrity of the original cottage while inserting a bold yet restrained new volume at the rear. A steep roof lifts to the south, drawing in soft light and framing views of the established Cape Lilac tree that anchors the backyard.
The architecture is quiet but confident—carefully balanced between old and new, robust and delicate. Interior spaces are reoriented to support work, rest, and everyday rituals, with a material palette tuned to the warm tones of Burswood’s sandy soils.
More than a renovation, this project is a portrait—of place, personality, and the quiet ambition of making a house one’s own.
TYPE
LOCATION
STATUS
CLIENT
SITE AREA
FLOOR AREA
TEAM
Residential Alteration & Addition
Burswood, Western Australia
Construction Late 2025
Private
330m²
68m² add — 90m² alt
Craig Nener
A quiet, deliberate home in Burswood—part preservation, part portrait—framing light, landscape, and the life of its owner.
TYPE
LOCATION
STATUS
CLIENT
SITE AREA
FLOOR AREA
TEAM
Residential Alteration & Addition
Beaconsfield, Western Australia
Development Approval Granted
Private
749m²
105m² alt — 130m² add — Total 235m²
Craig Nener
James Russell
A house of history and quiet symmetry, DIG House connects two volumes through a raised library bridge, encircling a courtyard garden of preserved limestone ruins.














Beaconsfield, WA
DIG House is a project rooted in history—both personal and geological. Designed for a pair of academic clients, an archaeologist and an anthropologist, the home explores themes of memory, order, and the quiet presence of time.
An original limestone cottage has been carefully restored and connected to a mirrored new wing at the rear, creating a cloistered courtyard in between. The two buildings are linked by a raised corridor—the library bridge—which houses the clients’ extensive book collection. Dark and elevated, this space preserves the delicate archival material while allowing flora and fauna to move undisturbed beneath, joining the internal garden with the surrounding landscape.
The courtyard garden itself is shaped by the remnants of a 1970s annex, its limestone footings retained as ruins and reimagined as low seating and hearth around a central firepit—an archaeological dig reinterpreted as living space.
The new wing contains guest quarters, a study, and the open kitchen-living-dining space, designed with simple materials, crisp form, and full-height, north facing glazing that opens to the garden. Together, the plan reads as a quiet circuit—a considered rhythm of past and present, shelter and exposure, permanence and change.














Beaconsfield, WA
DIG House is a project rooted in history—both personal and geological. Designed for a pair of academic clients, an archaeologist and an anthropologist, the home explores themes of memory, order, and the quiet presence of time.
An original limestone cottage has been carefully restored and connected to a mirrored new wing at the rear, creating a cloistered courtyard in between. The two buildings are linked by a raised corridor—the library bridge—which houses the clients’ extensive book collection. Dark and elevated, this space preserves the delicate archival material while allowing flora and fauna to move undisturbed beneath, joining the internal garden with the surrounding landscape.
The courtyard garden itself is shaped by the remnants of a 1970s annex, its limestone footings retained as ruins and reimagined as low seating and hearth around a central firepit—an archaeological dig reinterpreted as living space.
The new wing contains guest quarters, a study, and the open kitchen-living-dining space, designed with simple materials, crisp form, and full-height, north facing glazing that opens to the garden. Together, the plan reads as a quiet circuit—a considered rhythm of past and present, shelter and exposure, permanence and change.
TYPE
LOCATION
STATUS
CLIENT
SITE AREA
FLOOR AREA
TEAM
Residential Alteration & Addition
Beaconsfield, Western Australia
Development Approval Granted
Private
749m²
105m² alt — 130m² add — Total 235m²
Craig Nener
James Russell
A house of history and quiet symmetry, DIG House connects two volumes through a raised library bridge, encircling a courtyard garden of preserved limestone ruins.
HALF-A-HOUSE
TYPE
LOCATION
STATUS
CLIENT
SITE AREA
FLOOR AREA
TEAM
New Residential Ancillary
Byron Bay, New South Wales, Australia
Schematic Design
Private
7447m²
84m²
Craig Nener
Jordan Pol
Ingo Wurm
A pared-back country dwelling anchored by sandstone walls, this small home is half a house and half a memory—open to the treetops, made for retreat.











Ewingsdale, NSW
This project is a sculptural take on the classic Australian country stay—half a house, half a memory, grounded in sandstone and open to the trees.
Perched on a picturesque site in Ewingsdale, this ancillary dwelling reinterprets the colonial settler’s cottage. A long veranda stretches across the front, looking out over the valley, while the pitched roof is cut open at the rear—exposing the structure and inviting light through clerestory windows that frame the canopy beyond.
Two long sandstone walls anchor the building into the site, housing the bathroom and stair, and supporting an upper floor dedicated to open, adaptable living. A single bedroom and central fireplace form the heart of the plan, while the bathroom is nestled between the thick walls—open to the sky above and treetops beyond.
Downstairs, a garage and breakout studio space offer flexibility for making, storage, or retreat. Designed as a weekend home for the clients' adult children—and as a guest Airbnb when not in use—the dwelling is part home, part shelter, part lookout.
It’s a reverse granny flat with a country soul: compact, elemental, and quietly generous.













TYPE
LOCATION
STATUS
CLIENT
SITE AREA
FLOOR AREA
COLLABORATORS
New Residential Ancillary
Byron Bay, New South Wales, Australia
Schematic Design
Private
7447m²
84m²
Ingo Wurm, Jordan Pol
A pared-back country dwelling anchored by sandstone walls, this small home is half a house and half a memory—open to the treetops, made for retreat.
TYPE
LOCATION
STATUS
CLIENT
SITE AREA
FLOOR AREA
TEAM
Residential Addition
Yanchep, Western australia
Unbuilt
Private
750m²
108m² addition — 124m² alteration
Craig Nener
Ingo Wurm
Stuart Confait
A coastal stronghold of sand-cast concrete—designed for solitude, sea views, and a life well-aged in place.











Yanchep, WA
Embedded into the sandy slopes of Yanchep, this addition to a 1970s project home is designed as a long-term coastal retreat for a retiring couple. The new volume—formed from robust, sand-cast tilt-up concrete panels—anchors itself against the elements, offering protection from prevailing storm winds and harsh summer sun.
Positioned on the western edge of the site, the structure opens to uninterrupted ocean views, while remaining rugged and secluded. The plan houses a master suite, main living spaces, and a sunken writer’s studio, all arranged to support privacy, ease of movement, and changing needs over time. The original home remains at the rear, repurposed as a future caretaker’s residence—an act of foresight woven into the architectural narrative.
This is a house shaped by terrain, weather, and purpose—quietly monumental, aged in texture, and built to endure.










Yanchep, WA
Embedded into the sandy slopes of Yanchep, this addition to a 1970s project home is designed as a long-term coastal retreat for a retiring couple. The new volume—formed from robust, sand-cast tilt-up concrete panels—anchors itself against the elements, offering protection from prevailing storm winds and harsh summer sun.
Positioned on the western edge of the site, the structure opens to uninterrupted ocean views, while remaining rugged and secluded. The plan houses a master suite, main living spaces, and a sunken writer’s studio, all arranged to support privacy, ease of movement, and changing needs over time. The original home remains at the rear, repurposed as a future caretaker’s residence—an act of foresight woven into the architectural narrative.
This is a house shaped by terrain, weather, and purpose—quietly monumental, aged in texture, and built to endure.
TYPE
LOCATION
STATUS
CLIENT
SITE AREA
FLOOR AREA
TEAM
Residential Addition
Yanchep, Western australia
Unbuilt
Private
750m²
108m² addition — 124m² alteration
Craig Nener
Ingo Wurm
Stuart Confait
A coastal stronghold of sand-cast concrete—designed for solitude, sea views, and a life well-aged in place.
HAMMOND
TYPE
LOCATION
STATUS
CLIENT
SITE AREA
FLOOR AREA
TEAM
New Residential — Ancillary
Newstead, New South Wales
Off The Plan
Private
1212m²
36m² new build
Craig Nener
James Russell
















TYPE
LOCATION
STATUS
CLIENT
SITE AREA
FLOOR AREA
New Residential — Ancillary
Newstead, New South Wales
Off The Plan
Private
1212m²
36m² new build
RURAL sTUDIO—A
TYPE
LOCATION
STATUS
CLIENT
SITE AREA
FLOOR AREA
TEAM
New Residential Ancillary
Newstead, Victoria
Off The Plan
Private
1212m²
46m² new build
Craig Nener
Kirsten Hay
James Russell
A sculptural tent-like cabin for writing and retreat, Rural Studio A offers a quiet, focused interior wrapped in an expressive rural form.














TYPE
LOCATION
STATUS
CLIENT
SITE AREA
FLOOR AREA
TEAM
New Residential Ancillary
Newstead, Victoria
Off The Plan
Private
1212m²
46m² new build
Craig Nener
Kirsten Hay
James Russell
A sculptural tent-like cabin for writing and retreat, Rural Studio A offers a quiet, focused interior wrapped in an expressive rural form.
RURAL STUDIO—B
TYPE
LOCATION
STATUS
CLIENT
SITE AREA
FLOOR AREA
TEAM
New Residential — Ancillary
Newstead, Victoria
Off The Plan
Private
1212m²
36m² new build
Craig Nener
Kirsten Hay
James Russell
A quiet tower in the trees, Rural Studio B offers a vertical retreat for writing—elevated, efficient, and attuned to the landscape.
























TYPE
LOCATION
STATUS
CLIENT
SITE AREA
FLOOR AREA
COLLABORATORS
New Residential Ancillary
Newstead, Victoria
Design Development Stage
Private
1212m²
46m² new build
Kirsten Hayovel
A sculptural tent-like cabin for writing and retreat, Rural Studio A offers a quiet, focused interior wrapped in an expressive rural form.
RURAL COTTAGE
TYPE
LOCATION
STATUS
CLIENT
SITE AREA
FLOOR AREA
TEAM
New Residential
Newstead, Victoria
Design Development Stage
Private
1212m²
79m2 new build
Craig Nener
Kirsten Hay
James Russell
A dark timber-clad country home with a soaring roof and simple grid, Rural Cottage quietly settles into the landscape—offering a calm, replicable model for rural living.24 House of the Year














TYPE
LOCATION
STATUS
CLIENT
SITE AREA
FLOOR AREA
COLLABORATORS
New Residential
Newstead, Victoria
Design Development Stage
Private
1212m²
79m2 new build
Kirsten Hayovel
A dark timber-clad country home with a soaring roof and simple grid, Rural Cottage quietly settles into the landscape—offering a calm, replicable model for rural living.24 House of the Year
MOBILE
+61 400 800 968
STUDIO
1/14 LEURA STREET,
NEDLANDS WA 6009
AUSTRALIA


