TYPE
LOCATION
STATUS
AREA
TEAM
RECOGNITION
Residential Home
Yakushima, Japan
Competition Proposal
294m² NFA, 396 m² Outdoor/service
Craig Nener, Dylan Frkovich
Not A Hotel Developments
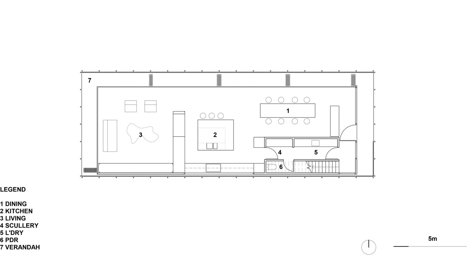
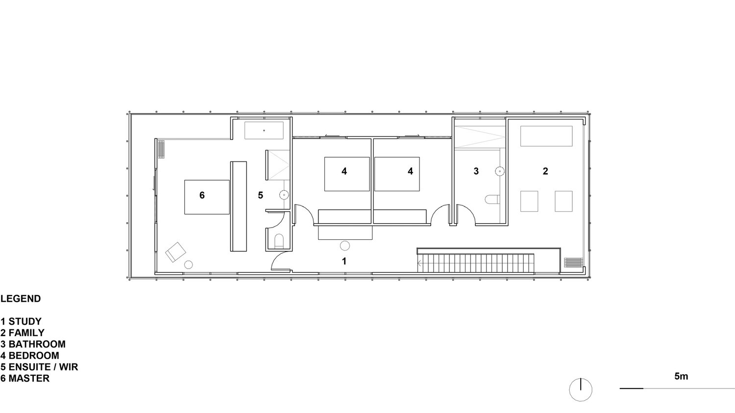
A restrained cedar log house that rests lightly on Yakushima’s granite terrain, framing ocean, forest, and water.

















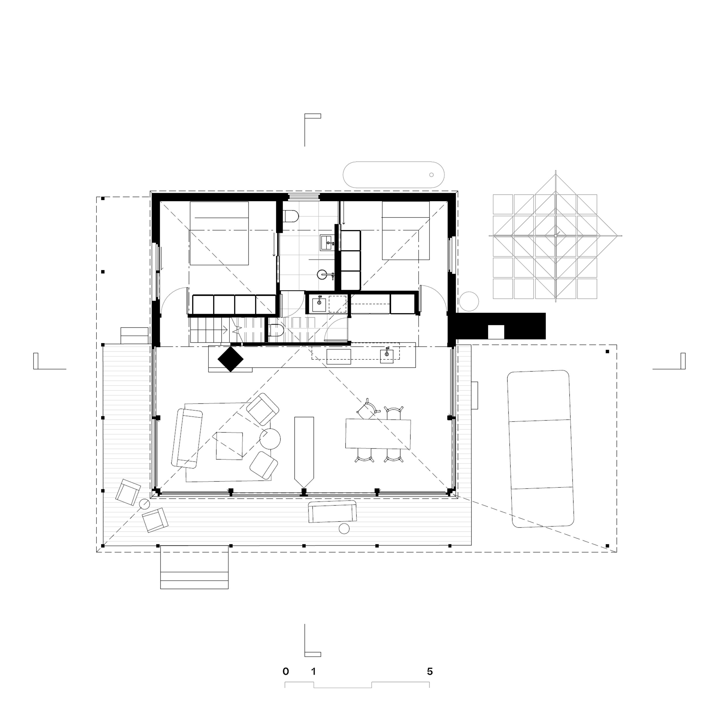
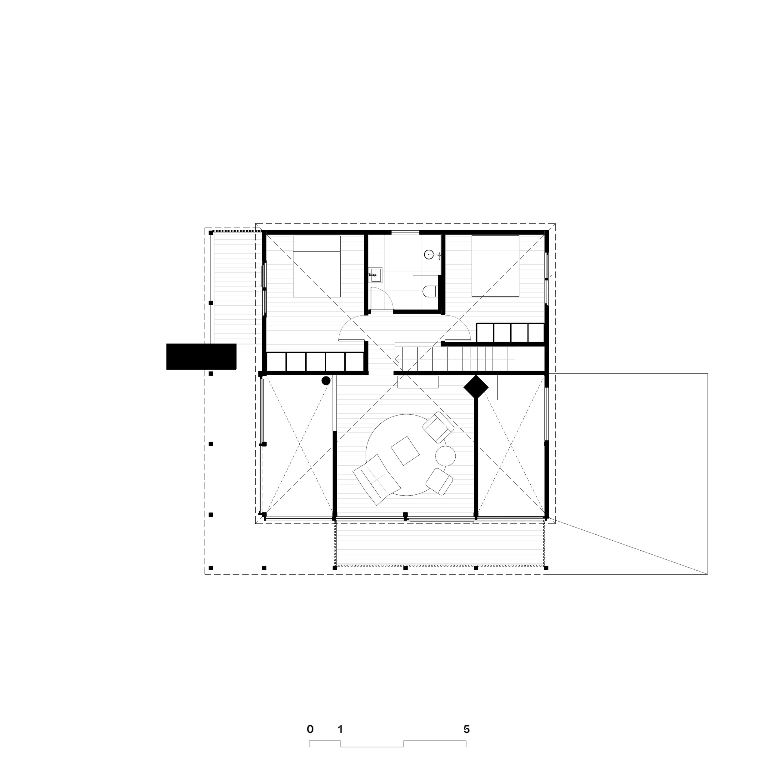
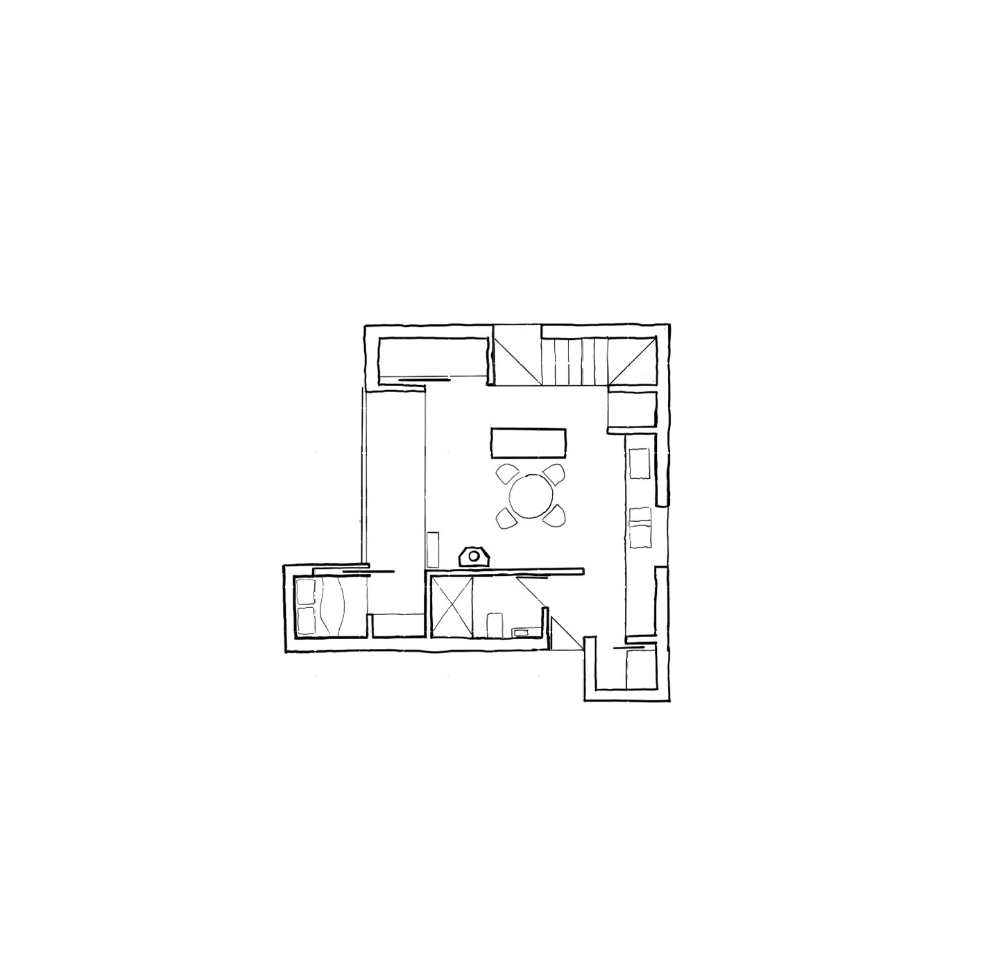
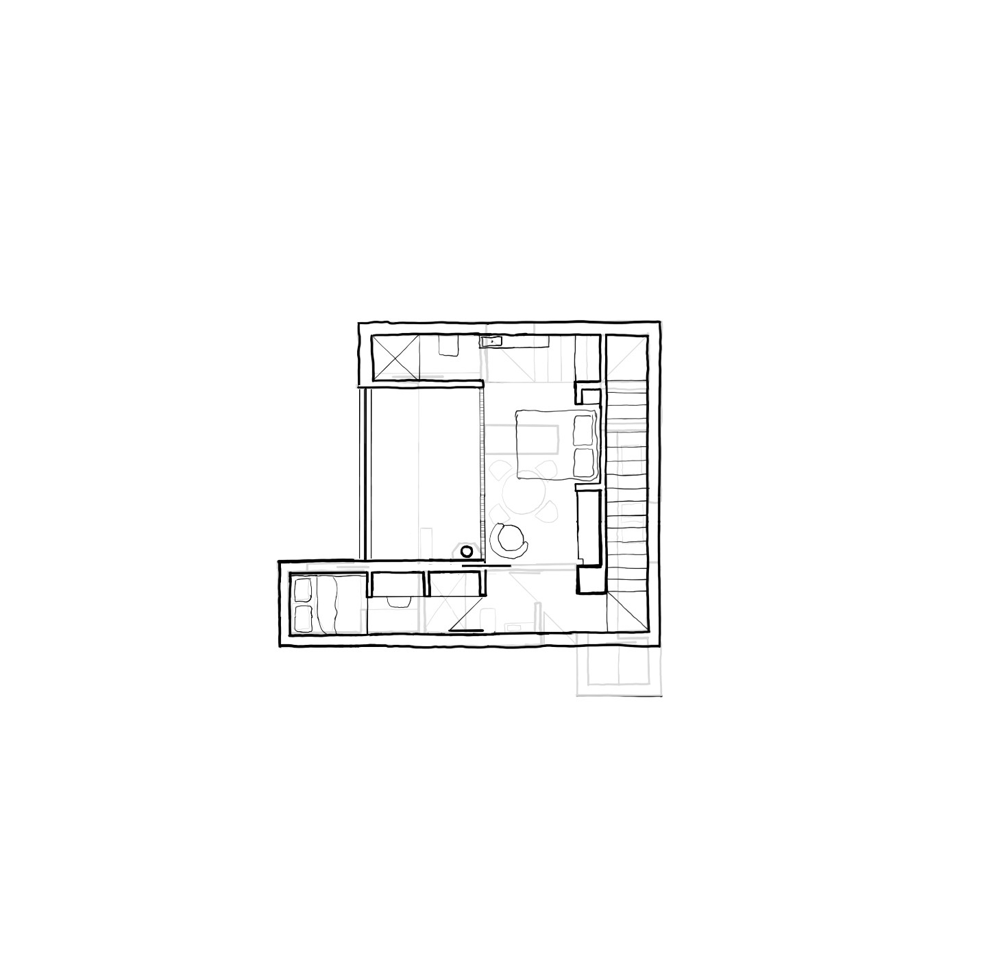
LONG CABIN
Yakushima, Japan
This project was developed as part of an international competition for NOT A HOTEL on Yakushima Island, Japan. The proposal explores a quiet architectural response to a landscape where steep mountains, dense cedar forests, granite formations, and the ocean exist in close proximity.
The house is conceived as a long cedar log structure that follows the natural contours of the terrain. Resting lightly on existing granite boulders, the building minimises disturbance while framing expansive views toward the ocean to the south and forested mountains to the north. A stream running through the site is retained and incorporated into a cultivated garden, reinforcing the relationship between architecture, water, and landscape.
Constructed from locally sourced cedar logs, the house draws from the material culture of Yakushima’s ancient Yakusugi forests, where slow growth and longevity shape both ecology and craft. The project explores how architecture can sit quietly within a powerful natural setting, creating a place of refuge, stillness, and connection to its surroundings.

















TYPE
LOCATION
STATUS
AREA
TEAM
RECOGNITION
Residential Home
Yakushima, Japan
Competition Proposal
294m² NFA, 396 m² Outdoor/service
Craig Nener, Dylan Frkovich
Not A Hotel Developments
A restrained cedar log house that rests lightly on Yakushima’s granite terrain, framing ocean, forest, and water.
Yakushima, Japan
This project was developed as part of an international competition for NOT A HOTEL on Yakushima Island, Japan. The proposal explores a quiet architectural response to a landscape where steep mountains, dense cedar forests, granite formations, and the ocean exist in close proximity.
The house is conceived as a long cedar log structure that follows the natural contours of the terrain. Resting lightly on existing granite boulders, the building minimises disturbance while framing expansive views toward the ocean to the south and forested mountains to the north. A stream running through the site is retained and incorporated into a cultivated garden, reinforcing the relationship between architecture, water, and landscape.
Constructed from locally sourced cedar logs, the house draws from the material culture of Yakushima’s ancient Yakusugi forests, where slow growth and longevity shape both ecology and craft. The project explores how architecture can sit quietly within a powerful natural setting, creating a place of refuge, stillness, and connection to its surroundings.
TYPE
LOCATION
STATUS
AREA
TEAM
RECOGNITION
Leisure & Wellness
Dalkeith Natural Hot Spring
Unbuilt
3680m² NFA, 450 m² Pools
Craig Nener, Ohlo Studio, Nic Brunsdon
World Architecture Festival 2021 - Shortlist
A riverfront geothermal retreat shaped by landscape, light, and the slow rituals of bathing.





















TAWARRI BATHS
Dalkeith, WA
Tawarri Baths is a contemporary geothermal retreat situated along the historic foreshore of Dalkeith. Informed by the slow erosion of limestone, the building is carved around a central planted gorge—an open void that connects each level through light, water, and landscape. Across 4,400m² of enclosed and open-air space, the experience unfolds as a procession: from shaded pools and wellness rooms, to rooftop waterlines and river-edge gardens.
The material palette is grounded in place—local stone, warm timber, and textured surfaces echo the surrounding geology and flora. Interiors shift between cool and warm zones, mirroring the natural patterns of Western Australia’s climate and terrain. Spaces are composed not as spectacle, but as atmosphere—offering moments to bathe, rest, and return.
Tawarri is a civic place shaped by country, light, and water: a building that invites pause, reflection, and quiet renewal.





















TYPE
LOCATION
STATUS
AREA
TEAM
RECOGNITION
Leisure & Wellness
Dalkeith Natural Hot Spring
Unbuilt
3680m² NFA, 450 m² Pools
Craig Nener, Ohlo Studio, Nic Brunsdon
World Architecture Festival 2021 - Shortlist
A riverfront geothermal retreat shaped by landscape, light, and the slow rituals of bathing.
Dalkeith, WA
Tawarri Baths is a contemporary geothermal retreat situated along the historic foreshore of Dalkeith. Informed by the slow erosion of limestone, the building is carved around a central planted gorge—an open void that connects each level through light, water, and landscape. Across 4,400m² of enclosed and open-air space, the experience unfolds as a procession: from shaded pools and wellness rooms, to rooftop waterlines and river-edge gardens.
The material palette is grounded in place—local stone, warm timber, and textured surfaces echo the surrounding geology and flora. Interiors shift between cool and warm zones, mirroring the natural patterns of Western Australia’s climate and terrain. Spaces are composed not as spectacle, but as atmosphere—offering moments to bathe, rest, and return.
Tawarri is a civic place shaped by country, light, and water: a building that invites pause, reflection, and quiet renewal.
BATH HOUSE




TYPE
LOCATION
STATUS
AREA
Rural Residential
Kalamunda, WA
Just for fun
120m² NFA / 430m² Shade
Tent House is a lightweight, elevated dwelling shaped by the Australian bush—its vast canopy roof floats above timber-lined rooms, offering shade, stillness, and connection to land.









TYPE
LOCATION
STATUS
AREA
Rural Residential
Kalamunda, WA
Just for fun
120m² NFA / 430m² Shade
Tent House is a lightweight, elevated dwelling shaped by the Australian bush—its vast canopy roof floats above timber-lined rooms, offering shade, stillness, and connection to land.
FIRE HOUSE













TYPE
LOCATION
TEAM
CONTACT
RECOGNITION
Pattern Book Homes
Australia Wide
Craig Nener, Joel Benichou
ArchitectureAU—Pre-Designed Homes
PROJECT_HOME is a new vision for housing—pre-designed, deeply contextual, and rooted in the architectural traditions of Australia.















PROJECT—HOME
Australia Wide
PROJECT_HOME is a forward-thinking initiative by Craig Nener (Grotto Studio) and Joel Benichou.
It reimagines the concept of pre-designed housing by drawing inspiration from Australia's historical pattern book homes, aiming to address contemporary housing challenges. By integrating traditional design principles with modern needs, PROJECT—HOME offers adaptable, efficient, and contextually responsive housing solutions. The initiative emphasizes the importance of cultural narratives, sustainability, and human-focused design in creating homes that are both functional and meaningful.
Through this collaboration, Nener and Benichou seek to provide a new vision for residential architecture that honors the past while innovating for the future.















PROJECT—HOME
Australia Wide
PROJECT_HOME is a forward-thinking initiative by architects Craig Nener (Grotto Studio) and Joel Benichou (Archive Office).
It reimagines the concept of pre-designed housing by drawing inspiration from Australia's historical pattern book homes, aiming to address contemporary housing challenges. By integrating traditional design principles with modern needs, PROJECT—HOME offers adaptable, efficient, and contextually responsive housing solutions. The initiative emphasizes the importance of cultural narratives, sustainability, and human-focused design in creating homes that are both functional and meaningful.
Through this collaboration, Nener and Benichou seek to provide a new vision for residential architecture that honors the past while innovating for the future.
TYPE
LOCATION
TEAM
CONTACT
RECOGNITION
Pattern Book Homes
Australia Wide
Craig Nener, Joel Benichou
ArchitectureAU—Pre-Designed Homes
PROJECT_HOME is a new vision for housing—pre-designed, deeply contextual, and rooted in the architectural traditions of Australia.
MODUS


























IVM
Iceland Volcano Museum
Project Team: Craig Nener
COMPETITION - Honourable Mention
This proposal is part Eldfell homage and architectural experiment by way of carving within a post-landscape topography where a museum of pitched roofs is blanketed by black ash dunes as though it’s been buried beneath a plume of a volcano eruption such as the near-by Hverfjall. The form creates a tension as the museums silhouette mimics the mountainous landscape with the affecting domestic emotions of the humble pitched roof - evoking the buried homes of Eldfell. It’s presence on the horizon provides a landmark of curiosity with an introverted experience within that embeds the explorer beneath the earth, allowing them to regain their own sense of scale.






























IVM
Iceland Volcano Museum
Project Team: Craig Nener
COMPETITION - Honourable Mention
This proposal is part Eldfell homage and architectural experiment by way of carving within a post-landscape topography where a museum of pitched roofs is blanketed by black ash dunes as though it’s been buried beneath a plume of a volcano eruption such as the near-by Hverfjall. The form creates a tension as the museums silhouette mimics the mountainous landscape with the affecting domestic emotions of the humble pitched roof - evoking the buried homes of Eldfell. It’s presence on the horizon provides a landmark of curiosity with an introverted experience within that embeds the explorer beneath the earth, allowing them to regain their own sense of scale.
ICELAND CABIN




NGV PAVILION
Location: Melbourne, VIC
The Ghost of You is an exhibition of the Australian Sky at day and an entirely new world of experience at night — respectively exhibiting the phenomena of the natural world while expressing the creativity of our most inner worlds.
Project Team: Craig Nener, Ryan Vincent and Miranda Menzies
NO PLACE — 2019


















NGV PAVILION
Location: Melbourne, VIC
The Ghost of You is an exhibition of the Australian Sky at day and an entirely new world of experience at night — respectively exhibiting the phenomena of the natural world while expressing the creativity of our most inner worlds.
Project Team: Craig Nener, Ryan Vincent and Miranda Menzies
NO PLACE — 2019
URBAN ARCHITECTURE STUDIO












VOLUME












MANTIS






CUBE HOUSE
















TERRACE HOUSE





BLIND HOUSE








MANDALA BAR






MUSINGS
Location: Australia
Studio: Grotto
Just for fun
There is a quintessence of the Australian landscape expressed in these paintings that seem more real than reality or any photo - almost meta-real. The artist paints deeper than what he sees, he paints what he witnessed beyond vision into all senses of how that place made him feel. Here, his connection to country becomes manifest.
The architecture I sketch into these paintings attempts to co-exist within this experience. It responds not only to the landscape but to the connection of place that the artist felt in that moment.
These renderings are created using Procreate on an iPad Pro and the Apple Pencil. To see more, visit my Instagram @craigncncr


















Location: Australia
Studio: Grotto
Just for fun
There is a quintessence of the Australian landscape expressed in these paintings that seem more real than reality or any photo - almost meta-real. The artist paints deeper than what he sees, he paints what he witnessed beyond vision into all senses of how that place made him feel. Here, his connection to country becomes manifest.
The architecture I sketch into these paintings attempts to co-exist within this experience. It responds not only to the landscape but to the connection of place that the artist felt in that moment.
These renderings are created using Procreate on an iPad Pro and the Apple Pencil. To see more, visit my Instagram @craigncncr
SYDNEY IS BEAUTIFUL








Sydney is Beautiful
The Woolloomooloo Precinct aims to become a beautiful architectural development that combines traditional design language with technical proficiency to create a functional and visually pleasing assembly to complement the rich heritage of Sydney’s urban fabric. The use of “abbreviated classicism” is applied to ensure the architecture is based on the classical principles of proportion and order while remaining contemporary and relevant to today’s context.
The development features an ensemble of four typologies to support a diverse range of social and commercial interactions, all arranged to suit the existing road tunnel and site conditions. [1] row of terrace housing, inspired by the Victorian and Edwardian terrace houses that are a defining feature of the area’s streetscape, helps to stitch the development into the surrounding neighbourhood and contribute to it’s character. [2] cultural building (such as a museum or gallery) serves as the terminated vista from Robinson Street and embraces an existing tree to form a semi-cloistered public gathering space. [3] mixed-use building of commercial and street level retail spaces helps to barricade the main road of William Street, with small laneways creating social intimacy between each building. [5] The refurbishment of 132 William Street serves as the historical anchor of the development, with [4] the tower as a backdrop that houses a blend of office and cultural/civic amenities with river views and grand multifunction spaces on its top levels.
The development makes a significant contribution to the local neighbourhood by using locally sourced materials and stone aggregates to form the detailed finishes of the façade and street-level materiality, thus anchoring the project to its geology and emphasising its belonging to its context.
Sustainability is at the heart of the Woolloomooloo Precinct’s design, with a focus on climatically responsive design and long-term structural durability. The construction methods used incorporate a blend of state-ofthe- art and age-old technologies, such as self-healing concrete and precast post and beam façade construction elements for efficiency and a rhythmic aesthetic, to ensure its longevity. The internal floor and piloti structure shall be an assembly of mass laminated timber composites to create an overall low-embodied-carbon design. An emphasis is also placed on natural cross ventilation and passive solar design principles, which respond to the local climatic conditions and prevailing breezes, to encourage low running costs and a healthier indoor environment for its inhabitants.
The Woolloomooloo Precinct is a project that not only enhances the aesthetic of the area but also improves the quality of life for the inhabitants and it’s visitors to ensure that Sydney Is Beautiful.
CAPE TO CAPE HQ








COFFS HARBOUR YATCH CLUB









CELJE




HOLOSCENE®
Just for fun
HOLOSCENE® is an exploration in light, space and graphic projection. The aim is to achieve an atmosphere that transcends any current exhibition medium. The holographic technology exists today, although, we are yet to utilise its full potential. Ourselves and artists alike are able to manipulate space and light with visual projections that will blur the boundary of architecture and the two dimensional screens that were forever starring at. This will be the confluence of the digital and physical world, in space and time.
The visuals created in these images are from scale models and reflections from digital art concealed out of frame.















Studio Grotto
HOLOSCENE® is an exploration in light, space and graphic projection. The aim is to achieve an atmosphere that transcends any current exhibition medium. The holographic technology exists today, although, we are yet to utilise its full potential. Ourselves and artists alike are able to manipulate space and light with visual projections that will blur the boundary of architecture and the two dimensional screens that were forever starring at. This will be the confluence of the digital and physical world, in space and time.
The visuals created in these images are from scale models and reflections from digital art concealed out of frame.
BRIDGE IN PARIS










































